MIKE JULIUS
ENVIRONMENT ARTIST
House Project
GAME ART

ARCH

ARCHITECTURE

PERSONAL ART
HOME
VRAY RENDERING

HOUSE PROJECT

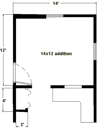
House Addition Proposal
Trim repair and capping
14 x 12 addition  168 sq ft.

Construction:    Post and Beam. Deck is currently supported by 4  6x6 posts, should not need variance if stays within 14x13 existing deck area

Hvac:                   Can plug into existing, or add own unit.  TBD.

Materials:           Laminate flooring, sheet rock walls and ceilings. Match existing siding.

Door:                  Door could be sliding or hinged. TBD.











Some of the trim is rotted and needs to be replaced. Outlined in red.